Prekės aprašymas
Dujiniai židiniai komplektuojami su pakopiniu degikliu. Pirmosios pakopos galia 4,7kW, antroji pakopa padidina galią iki 9,3kW. Židinio galia valdoma valdikliu Metric GV-60. Valdymo pultelyje nustatoma norima patalpos temperatūra.
Židinys atitinka A energijos efektyvumo klasę.
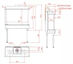
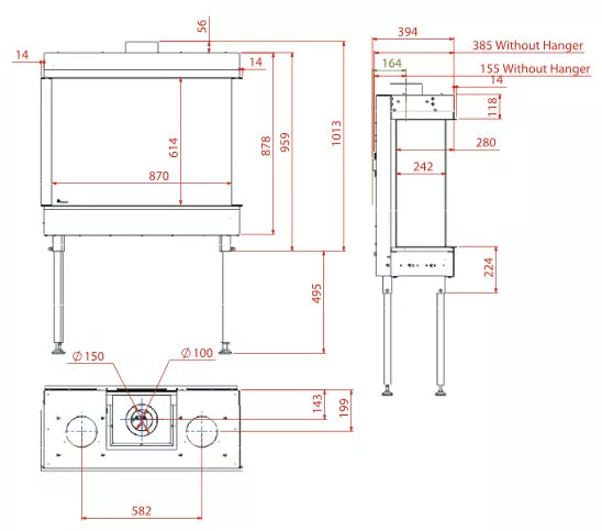
Židinys į kaminą jungiamas 100/150 mm skersmens dūmtraukiu. Vidiniu dūmtraukio skersmeniu degimo produktai (dūmai) šalinami , o išoriniu skersmeniu - tiekiamas oras degimo palaikymui, todėl židinio patalpoje esantis oras išlieka gaivus.
Komplekte yra kojelės ir tvirtinimai kabinimui ant sienos, todėl židinį galite statyti ant pagrindo arba montuoti ant sienos.
Židinys gali būti su gamtinių ar suskystintų dujų degikliu. Užsakant būtina nurodyti kokios dujos bus naudojamos.
Židinys yra be rėmo, kuris užstotų dalį besikūrenančios ugnies.
Į kainą įskaičiuota: valdymo pultas, dviejų pakopų degiklis, židinio stiklas, degimo pakuros dekoracijos: malkos arba akmenukai (baltos / pilkos spalvos).
Papildomai galima užsakyti internetinio valdymo (WIFI) modulį, vidinių sienelių bei degiklio atspindinčius stiklus.
Degikliui suteikiama 10 metų garantija.
Židinio apdaila į kainą neįskaičiuota.











