Prekės aprašymas
*esant nominaliai galiai
| Standartinėje komplektacijoje Pažangus valdiklis AK4000 Degiklis iš karščiui atsparaus termobetono Kintamų apsukų įpučiamasis ventiliatorius Išmetamųjų dujų temperatūros jutiklis STB apsauga Išleidimo kranas Priedai valymui Papildomai galite užsisakyti Ištraukiamasis ventiliatorius V25 Aušinimo vožtuvas 15 cm aukščio kojas katilui Priešais katilą statoma metalinė peleninė | ![]() |
![]() |
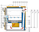
Dujų generacijos principas
Dujų generacijos pagrindu vykstantis degimo procesas gerokai skiriasi nuo įprasto. Dujų generacinis katilas turi dvi kameras. Į viršutinę kraunamas kuras, o apatinėje vyksta galutinio sudeginimo procesas. Tarp šių dviejų kamerų sumontuotas degiklis. Viršutinė kamera Vigas katiluose yra sandari, todėl naudojamas automatiškai reguliuojamų apsukų įpučiamasis ventiliatorius, kuris paduoda pirminį orą. Pirmoje fazėje degant kurui, iš jo išsiskiria degiosios dujos, kurios antroje fazėje sumaišomos degiklyje su antriniu oru, taip gaunant degujį mišinį. Šis degusis mišinys sudega trečioje fazėje apatinėje kameroje, procesas pavaizduotas nuotraukoje. Šis degimo metodas yra labai efektyvus, todėl žymiai sumažėja kuro sąnaudos, lyginant su įprasto degimo katilais. Efektyvumui pagerinti naudojamos pažangios technologijos, jutikliai ir valdikliai. Dujų gerenarciniuose katiluose gali būti sumontuotas Lambda zondas, kuris dar labiau pagerina degimo efektyvumą. Lambda zondas yra Vigas katilų LC versijos komplektacijoje. |
|
Dujų generacinis katilas Vigas
Vandens šildymo katilai Vigas skirti sausos medienos deginimui, nuo pjuvenų iki stambių gabaliniu malkų - ilgis pagal katilo įkrovos matmenis, diametras - iki 20 cm. Pjuvenas, drožles, medienos briketus, skiedras reikia deginti maišant su stambiomis malkomis. Visi Vigas katilai yra su gamykloje įmontuotu aušinimo elementu, užtikrinančiu, jog katilas niekuomet neperkais. Taip pat nuo 2011 metų visi VIGAS katilai gaminami su įmontuotu dūmų temperatūros davikliu, kuris padeda valdyti katilo degimo procesą ir leidžia pasiekti vieną aukščiausių naudingumo koeficientų tokio tipo katilų segmente. Katilo viršutinėje dalyje sumontuotas valdymo pultas su mikroprocesoriumi ir ekranu, kurio pagalba reguliuojamas katilo darbas. Sumontuota valdymo sistema užtikrina labai efektyvų įvairių kuro rūšių sudegimą. Katilai, kurių degimą valdo mikroprocesorius (ne su mechaniniu degimo valdymu) pasižymi iki 25% efektyvesniu darbu. |
|
Katilo korpusas suvirintas iš 4 ir 6 mm storio plieno lakštų. Vidinės katilo sienelės, kurios kontaktuoja su liepsna ir degimo produktais yra suvirintos iš 6 mm storio plieno lakštų, o išorinės korpuso sienelės iš 4 mm storio lakštinio plieno. Šilumokaitis suvirintas iš 57 x 5 mm plieno vamzdžių. Išorinė katilo apdaila pagaminta iš 0,8 mm storio plieno skardos. Katilas izoliuotas 20 ir 40 mm storio šilumine izoliacija Nobasil. Degimo produktai į kaminą iš katilo išeina per 160 arba 195 mm skersmens vamzdį. Katilo vidinėje dalyje yra kuro įkrovimo kamera, kur kuras džiūsta ir degdamas išskiria medžio dujas. Dujos praeina pro karščiui atsparaus betono plokštės angą ir kartu su antriniu oru sudega degimo kameroje. Degimo produktai atiduoda šilumą vandeniui šilumokaityje. Nesudegusios kuro dalys (pelenai ir suodžiai ) iš degimo kameros pašalinami pro apatines dureles. |
|
Katilo pirmasis paleidimas-derinimas
Visiems atomatizuotiems katilams reikalinga paleidimo-derinimo procedūra. Kas tai yra ir kodėl ji reikalinga? Patikrinama ar katilas pajungtas teisingai, kaip rekomenduoja gamintojas; Patikrinama ar sandariai užveržti visi sujungimai; Patikrinama ar sandariai ir teisingai pajungtas dūmtraukis; Patikrinama ar tinkamai sumontuotas elektros elektros tiekimas ir įžeminimas; Suvedami atitinkami įrenginio parametrai; Prijungiami jutikliai; Paleidžiamas šildymo įrenginys ir paaiškinama įrenginio naudojimo instrukcija; Klientas apmokomas teisingai eksploatuoti įrenginį, paaiškinamos garantinio aptarnavimo sąlygos, užpildomas paleidimo-derinimo darbų atlikimo aktas.Perkant šildymo įrenginį, mes būtinai pasiūlysime Jums ir paleidimo-derinimo procedūrą. |
![]() |












